ING FONCIER vous souhaite une merveilleuse année 2026 !
Expertises en Développement Immobilier
Avec ma devise « Bâtir le neuf, révéler l'ancien », je mets mon expertise au service de projets immobiliers variés et ambitieux. Je maîtrise trois domaines étroitement liés :
Le développement de projets immobiliers neufs : de la conception à l'obtention du PC.
La division et la rénovation d’immeubles anciens : pour créer des biens optimisés en investissement locatif.
L’externalisation du développement foncier pour les promoteurs immobiliers : en prenant en charge la recherche, l’analyse et la sécurisation de terrains constructibles, afin de vous permettre de vous concentrer sur votre cœur de métier.
Je vous accompagne personnellement à chaque étape, en m’appuyant sur un réseau de partenaires experts (architectes, notaires, bureaux d’études…), pour garantir la qualité, la faisabilité technique et juridique, et surtout la rentabilité de vos opérations.






1. Développement de Projets Immobiliers Neufs
Je maîtrise les étapes clés d'un projet immobilier neuf, du repérage foncier à l'obtention du PC. Mon approche rigoureuse assure des résultats optimaux en respectant les normes énergétiques, environnementales et urbanistiques.
Développement Foncier : Identification et acquisition de terrains adaptés, avec une analyse approfondie des opportunités marché.
Étude de Faisabilité : Évaluation technique, financière et réglementaire pour valider la viabilité du projet.
Soutenance en Mairie : Préparation et présentation des dossiers auprès des autorités locales pour obtenir les approbations nécessaires.
Élaboration des Permis de Construire (PC) : Collaboration étroite avec des cabinets d'architectes partenaires renommés pour concevoir des plans innovants et conformes.
Grâce à mon expertise, vos projets neufs deviennent des investissements solides et attractifs.
2. Développement de Projets de Division et Rénovation d'Immeubles Anciens
Je redonne vie aux bâtiments anciens en les adaptant aux besoins modernes, particulièrement pour des investissements locatifs. Cette expertise permet de maximiser la valeur des biens tout en préservant leur charme historique.
Division d'Immeubles : Découpage stratégique en lots optimisés pour une rentabilité locative accrue.
Rénovation Complète : Travaux de restauration et de modernisation, en intégrant des solutions énergétiques durables.
Orientation Investissement Locatif : Conseils sur les stratégies fiscales, les rendements attendus et la gestion locative.
Collaboration avec Partenaires : Partenariats avec architectes et artisans spécialisés pour des finitions haut de gamme.
Mes projets de rénovation transforment l'ancien en opportunités lucratives, idéales pour les investisseurs avisés.
3. Externalisation du Développement Foncier pour les Promoteurs Immobiliers
Je me positionne comme un partenaire stratégique pour l’externalisation totale ou partielle de votre développement foncier, vous permettant de vous concentrer sur votre cœur de métier : la promotion et la commercialisation.Fort d’une expérience de près de 20 ans dans le secteur foncier de la promotion immobilière, je maîtrise l’ensemble des étapes amont grâce à des collaborations étroites avec géomètres, notaires, AMO et architectes.
Recherche et Identification Foncière : Prospection proactive de terrains constructibles, avec une analyse approfondie des opportunités et des contraintes marché.
Études de Faisabilité Approfondies : Évaluation technique, juridique, urbanistique et financière pour valider le potentiel réel de chaque terrain.
Maîtrise des Bilans Financiers : Analyse précise des coûts d’acquisition, des charges foncières et des projections de rentabilité pour sécuriser vos investissements.
Accompagnement Sur Mesure : Conseil personnalisé et rigoureux tout au long de la phase de développement foncier, en lien étroit avec votre stratégie, dans la région Toulousaine et en Occitanie.
Grâce à cette expertise terrain et cette vision holistique des contraintes foncières, je vous fournis des opportunités foncières solides, fiables et optimisées pour vos futurs programmes.








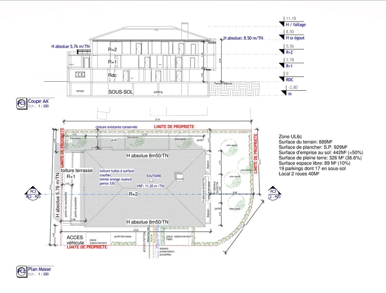
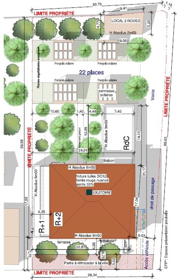
Quelques réalisations...




Contact
Téléphone
06 69 20 57 76
© 2025. All rights reserved.
ADRESSE
6 rue du Maréchal Lannes - 31130 BALMA
